1과목: 기계재료 및 요소
1. 탄소강(0.25%C)의 고온 기계적 성질을 설명한 사항 중 올바르지 않은 것은?
2. 다음 원소 중 고속도강의 주요 성분이 아닌 것은?
3. 다음은 보일러용 리벳 이음에 대한 설명이다. 옳은 것은?
4. 다음 중 저속, 소용량의 컨베어, 엘리베이터용으로 사용하는데 가장 적당한 체인은?
5. 지름 240mm 및 360mm의 외접 마찰차에서 중심 거리는?
6. 납에 대한 설명으로 틀린 것은?
7. 황동의 합금 원소는 무엇 인가?
8. 비틀림 시험의 목적과 관계없는 것은?
9. 다음 중 강의 표준조직이 아닌 것은?
10. 리벳이음을 한 강판에 하중을 가할 때 강판 사이의 리벳단면에 나란히 발생하는 응력은?
2과목: 기계가공법 및 안전관리
11. 원동차의 직경이 100mm, 종동차의 직경이 140mm, 원동차의 회전수가 400rpm일 때 종동차의 회전수는?
12. 재료의 전단응력이 35 N/㎜2이고, 키이의 길이가 40㎜, 접선력은 3000 N이면 너비는?
13. 일반적으로 고온에서 볼 수 있는 것으로 금속이 일정한 하중 밑에서 시간이 걸림에 따라 그 변형이 증가되는 현상은?
14. 자동차와 철도차량의 현가용으로 사용되는 스프링은?
15. 온도 변화에 따라 선팽창계수나 탄성률 등의 특성이 변화하지 않는 합금강은?
16. 절삭공구의 수명판정을 하는 데, 그 기준이 되지 않는 것은?
17. 센터리스 연삭작업에서 장점, 단점에 대한 각각의 설명으로 옳은 것은?
18. 렌즈의 끝 다듬질은 어느 래핑에 속하는가?
19. KS규격에 의한 안전색과 사용표지의 연결이 잘못된 것은?
20. 절삭제의 사용목적 중 틀리는 것은?
21. 드릴 작업에서 구멍을 뚫을 때 걸리는 시간의 계산 공식은 다음 중 어느 것인가? (단, t : 구멍깊이 [㎜], h : 드릴끝 원뿔높이[㎜], v : 절삭속도 [m/min], s : 드릴1회전당 이송거리[㎜/rev], D : 드릴의 지름[㎜]이다.)




" 입니다. 이유는 이 공식이 가장 정확한 계산을 제공하기 때문입니다. 다른 보기들은 각각의 변수를 고려하지 않거나, 일부 변수를 고려하지 않기 때문에 정확한 결과를 얻을 수 없습니다. 따라서, 드릴 작업에서 구멍을 뚫을 때 걸리는 시간을 정확하게 계산하려면 "
" 공식을 사용해야 합니다.22. 수직선반(vertical lathe)에 대한 설명 중 틀린 것은?
23. 게이지블럭에서 정밀도가 가장 낮은 것은?
24. 니이컬럼형 밀링 머신이 아닌 것은?
25. CNC공작기계에서 백 래쉬(Back lash)의 오차를 줄이기 위해 사용하는 기계부품은?
3과목: 기계제도
26. 한국산업규격을 표시한 것은?
27. 그림과 같은 용접 기호 기재 방법 설명으로 바르게 된 것은?
28. 중앙처리장치(CPU)와 주기억장치 사이에서 원활한 정보의 교환을 위하여 주기억장치의 정보를 일시적으로 저장하는 고속 기억장치는?
29. CAD 시스템으로 도형의 해칭(cross hathing)작업을 하려고 할 때 기본적인 입력 요소가 아닌 것은?
30. 다음 치수 중 원호의 길이를 나타내는 것은?

"가 원호의 길이를 나타냅니다. 이는 원의 둘레를 나타내는 공식인 "원주 = 2πr"에서 r(반지름)에 2π를 곱한 값이기 때문입니다. 따라서 "
"는 원의 둘레를 나타내는 값입니다.31. 도면에서 사용되는 선 중에서 가는 2점쇄선을 사용하는 것은?
32. 기하공차의 종류 중 자세공차가 아닌 것은?




"이 아닌 것입니다. 33. 컴퓨터에서 사용하는 RS-232-C의 용도는 무엇인가?
34. 다음 중 치수기입 원칙에 어긋나는 방법은?
35. 테이퍼 핀의 호칭법을 바르게 열거한 것은?
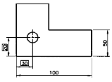
36. 점 P(3,2)를 원점을 중심으로 90° 회전시킬 때 회전한 점의 좌표는? (반시계 방향으로 회전)
37. 단면도의 해칭 방법에서 틀린 것은?
38. 다음 중 키의 크기를 나타내는 표시법은 어느 것인가?
39. 유체의 종류와 기호를 연결한 것으로 틀린 것은?
40. 보기의 치수 중 □이 뜻하는 것은?
41. "가"부에 나타날 보조 투상도로 올바른 것은?




"이 올바른 보조 투상도이다. 이유는 다음과 같다.
"는 차선 변경 시 안전한 이동 경로를 제시하는 것으로, 다른 보조 투상도들은 차선 변경 시 안전한 이동 경로를 제시하지 않는다.
"가 올바른 보조 투상도이다.42. 기준점, 선, 평면, 원통 등으로 관련 형체에 기하 공차를 지시할 때 그 공차 영역을 규제하기위하여 설정된 기준을 무엇이라고 하는가?
43. 기어에서 이의 크기를 나타내는 방법이 아닌 것은?
44. 다음 중 CAD 시스템의 설명 중 그 단위가 틀리게 연결된 것은?
45. 가장 기본적인 도면 요소는?
46. 다음 보기는 무엇에 대한 설명인가?
47. 허용 한계치수에서 기준치수를 뺀 값을 무엇이라 하는가?
48. 다음 중 억지 끼워 맞춤은?
49. 잇수 18, 피치원 지름 108인 스퍼기어의 모듈은?
50. CAD 시스템 중에서 데이터 저장 장치가 아닌 것은?
51. 면의 지시 기호에 있어서 각 지시 사항의 설명으로 틀린 것은?
52. 제도 용지의 세로와 가로의 비는 얼마인가?
53. 완전 나사부와 불완전 나사부의 경계를 표시하는 선은?
54. 그림에서 암나사의 구멍을 도시한 것으로 맞는 것은?(오류 신고가 접수된 문제입니다. 반드시 정답과 해설을 확인하시기 바랍니다.)




"만이 이를 정확하게 나타내고 있기 때문입니다. 다른 보기들은 구멍이 중앙에 위치하거나 오른쪽으로 치우쳐져 있기 때문에 틀린 것입니다.55. 구름 베어링의 호칭 번호에서 "6203 ZZ P6"의 설명 중 틀린 것은?
56. 스프로킷 휠의 도시법에 대한 설명으로 옳은 것은?
57. 45° 모따기를 나타내는 기호로 올바른 것은?
58. 다음 도면이 나타내는 단면도의 표시 방법은?
59. 줄무늬 방향 기호 중에서 가공 방향이 무방향이거나 여러 방향으로 교차할 때 기입하는 기호는?
60. 보스의 키홈 제도에 있어서 키홈의 가장 적당한 위치는?