1과목: 수처리공정
1. 응집제에 관한 설명으로 옳지 않은 것은?
2. 배출수 처리공정의 순서로 옳은 것은?
3. 계절 변화에 따른 처리수량에 대한 세척배출수의 비율은?
4. 액화염소 저장설비에 관한 설명으로 옳지 않은 것은?
5. 소독제의 특성에 관한 설명으로 옳지 않은 것은?
6. 단층여과에서 상향류로 여과하는 방법에 관한 설명으로 옳은 것은?
7. 여재의 유효경이 0.07 cm이고, 여층의 두께가 70 cm인 여과지에서 여과속도가 15 m/hr일 때, 수온 20 ℃에서의 투수계수(k)는 약 얼마인가? (단, 아래 Hazen 공식에 따라 구하고 c=124 이다.)
8. 플록형성지에 관한 설명으로 옳은 것은?
9. 소독제인 클로라민에 관한 설명으로 옳은 것을 모두 고른 것은?
10. 여과지의 운영 및 관리에 관한 설명으로 옳지 않은 것은?
11. 전염소처리의 목적으로 옳지 않은 것은?
12. 응집약품의 관리방법으로 옳은 것은?
13. 각종 염소제에 대한 미생물들의 CㆍT값 중 가장 큰 것은?
14. 급속혼화시설에 관한 설명으로 옳지 않은 것은?
15. 배출수 처리방법 중 가장 넓은 부지가 필요하고 날씨 조건의 영향을 많이 받는 것은?
16. 맛이나 냄새를 유발하는 생물학적 발생원(미생물)이 아닌 것은?
17. 15 mg/L인 소독부산물을 입상활성탄으로 흡착처리 하여 5 mg/L로 감소시키는데 필요한 흡착제의 양(mg/L)은 약 얼마인가? (단, Freundlich 흡착 등온식을 사용하며, K=0.5, n=0.6이다.)
18. 소독제인 염소의 누출을 확인하기 위해 사용하는 것은?
19. 분말활성탄의 장점으로 옳은 것은?
20. 소독부산물(THMs)의 처리 및 저감방안으로 옳지 않은 것은?
2과목: 수질분석 및 관리
21. 농도 100 mg/L를 %로 환산한 값으로 옳은 것은?
22. 먹는물수질공정시험기준상 ‘항량으로 될 때까지 건조한다’라 함은 같은 조건에서 1시간 더 건조할 때 전후 차가 g당 몇 mg 이하일 때를 말하는가?
23. 수질오염공정시험기준상 시료 채취방법으로 옳지 않은 것은?
24. 수질오염공정시험기준상 수질시험의 용량법(적정법)에 해당하는 것은?
25. 먹는물 수질공정시험기준상 맛 측정방법에 관한 설명으로 옳지 않은 것은?
26. 다음은 먹는물수질공정시험기준상 잔류염소-OT 비색법에 관한 설명이다. ( )에 들어갈 용어를 순서대로 나열한 것은?
27. A정수장의 정수지에서 잔류염소의 농도가 0.5 mg/L이고 소독제의 접촉시간이 1시간이었다. 바이러스에 대한 CㆍT요구값이 6일 때 이 정수지에서 불활성화비는?
28. 하루 100,000 m3을 처리하는 정수장의 정수지 유입부에 염소를 120 kg/day 주입할 때 정수지 유출부의 잔류염소농도가 0.8 mg/L 이었다. 이 물의 염소요구량(mg/L)은?
29. 자-테스트를 실시하는 목적으로 옳지 않은 것은?
30. 정수의 혼화, 플록 형성에서 속도경사(G) 값에 관한 설명으로 옳은 것은?
31. 정수지에 관한 설명으로 옳지 않은 것은?
32. 먹는물관리법에서 정의한 ‘먹는물’에 해당하는 것을 모두 고른 것은?
33. 지하수의 수질보전 등에 관한 규칙상 지하수를 생활용수로 이용하고자 하는 경우 일반오염물질로 수질검사를 받아야 할 항목은?
34. 물환경보전법령상 상수원 구간에서의 조류경보 경계단계에서 취수장ㆍ정수장 관리자의 조치사항으로 옳지 않은 것은?
35. 하천법령상 ‘가뭄의 장기화 등으로 하천수 사용 허가수량을 조정하지 아니하면 공공의 이익에 해를 끼칠 우려가 있는 경우’에 용수 배분의 우선 순위로 옳은 것은?
36. 먹는물 수질기준 및 검사 등에 관한 규칙상 광역상수도 정수장에서 매일 1회 이상 수질검사를 실시하여야 하는 항목에 해당하지 않은 것은?
37. 수도법령상 정수시설에 유해 미생물이나 화학물질이 투입되는 것에 대비하기 위하여 정수지 및 배수지에 수질자동측정장치를 설치하여야 하는 정수장의 시설용량 기준으로 옳은 것은?
38. 수도법령상 취수지점부터 정수장의 정수지 유출지점까지의 구간에서 정수처리기준에 관한 설명으로 옳은 것은?
39. 수도법령상 일반수도사업자가 준수해야 할 정수처리기준 중 불활성화비 계산을 위해 연속측정장치로 측정해야 하는 항목은?
40. 먹는물 수질기준 및 검사 등에 관한 규칙상 대장균ㆍ분원성 대장균군의 수질기준에 해당하는 것으로 옳은 것은? (단, 샘물ㆍ먹는샘물 및 먹는해양심층수의 경우는 제외한다.)
3과목: 설비운영(기계·장치 또는 계측기 등)
41. 가압탈수기의 여과포 선정 조건으로 틀린 것은?
42. 다음 밑줄 친 부분이 옳은 것을 모두 고른 것은?
43. 침전지의 정류설비에 관한 설명으로 옳지 않은 것은?
44. 정수처리 막여과 설비가 아닌 것은?
45. 정수장의 염소실에 비치하여야 하는 품목을 모두 고른 것은?
46. 여과지의 세척설비에 포함되는 것을 모두 고른 것은?
47. 전자식 유량계의 배관 설치 시 유의사항으로 옳지 않은 것은?
48. 주파수가 50 Hz이고 극수가 2극일 때 유도전동기의 이론적 회전수(rpm)는?
49. 전동기 절연진단법이 아닌 것은?
50. 10 A의 전류가 저항에 흐를 때 소비전력이 10 kW 이라면 저항의 크기[Ω]는?
51. 측정액의 밀도변화에 영향을 받지 않고 파도나 흐름의 영향을 받는 수위계는?
52. 유선으로 신호를 전송하는 방법은?
53. 중성점 접지 시 제3고조파의 영향으로 통신선에 유도장해를 발생시키는 변압기 결선법은?
54. 상수도 계측제어설비 무인화에 관한 대책으로 옳지 않은 것은?
55. 액화염소의 저장 또는 사용을 규제하는 법령은?
56. 펌프에서 축 추력을 경감시키는 방식이 아닌 것은?
57. 산업안전보건법상 안전검사대상기계등의 설치ㆍ이전하는 경우 안전인증을 받아야하는 기계에 해당되지 않는 것은?
58. 탁도계 측정방식이 아닌 것은?
59. 다음은 중ㆍ대용량 전동기 선정 시 고려사항이다. ( )에 들어갈 내용으로 옳은 것은?
60. 산업안전보건법령상 유해ㆍ위험물질 규정량에서 염소의 제조ㆍ취급ㆍ저장의 규정량(kg) 기준은?
4과목: 정수시설 수리학
61. 베르누이(Bernoulli) 정리를 응용한 것이 아닌 것은?
62. 점성계수를 [MLT]계 차원으로 나타낸 것은?
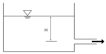
63. 물의 밀도에 관한 설명으로 옳지 않은 것은?
64. 관수로에서 레이놀즈수의 계산식과 관계가 없는 항목은?
65. 관수로의 유량을 측정하는 유량계에 해당하는 것을 모두 고른 것은?
66. 그림과 같이 수조의 벽에 작은 오리피스를 뚫어 물을 유출시킬 때, 수심(H)이 4배 증가하면 오리피스에서 유출되는 유속은 어떻게 변하는가? (단, 수조내의 수심은 일정하게 유지하는 것으로 가정한다.)
67. A시는 취수장에서 정수장까지 도수관이 매설되어 있다. 도수관의 조도계수(n)가 2배로 증가할 때, 유량은 어떻게 변하는가? (단, Manning 공식을 이용하여 구한다.)
68. 개수로 흐름에 관한 설명으로 옳지 않은 것은?
69. 직경 1 m인 원형관에 물이 가득차서 흐를 때, 동수반경(m)은 얼마인가?
70. 관수로 흐름에서 발생하는 미소손실이 아닌 것은?
71. 반경 0.3 m, 길이 300 m인 관로에 유속 3 m/sec로 물이 흐를 때, 마찰손실수두 (m)는 약 얼마인가? (단, 마찰손실계수는 0.01이다.)
72. 플록형성지에 관한 설명으로 옳지 않은 것은?
73. 급속혼화의 방법으로 적합하지 않은 것은?
74. 여과지에 유입되는 유량이 12,000 m3/day이고 여과지 표면적이 100 m2일 때, 여과 속도(m/day)는 얼마인가?
75. CㆍT값을 20 mg/Lㆍmin로 설계한 장방형 정수지의 잔류염소농도가 0.5 mg/L인 경우, 소독능을 만족하기 위한 정수지의 최소 체류시간(min)은? (단, T10/T는 1.0으로 한다.)
76. 캐비테이션에 대하여 안전하기 위해서는 이용할 수 있는 유효흡입수두가 펌프에서 필요로 하는 유효흡입수두보다 커야 한다. 일반적으로 두 수두차(m)는 얼마이상이 바람직한가?
77. 펌프의 규정회전속도가 1,000 rpm일 때 양정은 1 m이다. 펌프의 회전속도를 1,200 rpm으로 운전하는 경우 양정(m)은 얼마인가?
78. 펌프의 회전수(N)가 1,000 rpm, 토출량(Q)이 4 m2/min, 전양정(H)이 4 m인 펌프의 비속도(Ns)는 약 얼마인가?
79. 펌프로 유량 1 m2/sec의 물을 전양정 20 m 양수할 때, 요구되는 펌프의 축동력(kW)은 약 얼마인가? (단, 펌프의 효율은 80 %이다.)
80. 수격작용을 경감하기 위해 사용하는 방법이 아닌 것은?